Обяви За нас Контакти
Продава 2-СТАЕН
град Пловдив, Остромила
145 834 €
285 226.51 лв.

(2 145 €, 4 195.26 лв./m2)
Не се начислява ДДС
История на цената
Публикувана в 16:30 на 1 април, 2026 год.
Обявата е посетена 40 пъти.
Площ:
68 m2
Етаж:
2-ри от 4
Строителство:
Тухла, Въведен в експлоатация 2022 г.

Описание на имота:


Компания `Х` представя на Вашето внимание двустаен апартамент в Остромила!

МЕСТОПОЛОЖЕНИЕ: Квартал Остромила е спокоен и бързо развиващ се район в Пловдив. Той се намира в южната част на града и е предпочитан заради тишината и по-спокойната атмосфера. В квартала има предимно ново строителство, къщи и модерни жилищни сгради, което го прави привлекателен за млади семейства. Районът предлага повече пространство, чист въздух и по-малко шум в сравнение с централните части на града.Остромила постепенно се развива с нови магазини и услуги, а добрата му връзка с останалите части на Пловдив го прави удобно място за живеене и инвестиция.

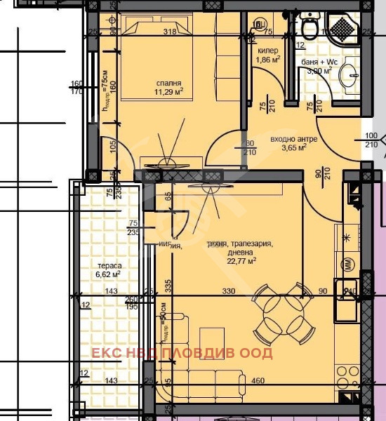
РАЗПРЕДЕЛЕНИЕ: Жилището разполага с площ от 68 кв.м, разгърната в следното функционално разпределение: входно антре, хол с кухненски бокс и трапезария, спалня, баня с тоалетна, тераса.

СЪСТОЯНИЕ: Жилището е в етап на проектиране, което предоставя възможност за избор на разпределение и довършителни решения според предпочитанията на бъдещите собственици.

Заповядайте да Ви го покажем. Използвайки нашите услуги Вие ще превърнете закупуването на новия си дом в едно приятно изживяване. На Ваше разположение сме всеки ден, от понеделник до неделя от 09:00 до 20:00ч. Възползвайте се от безплатна консултация в наш офис, където ще ви спестим време и ще ви запознаем с всички актуални имоти в България, отговарящи на Вашето търсене. Свържете се с нас на 0887779990 или на 0884060990 и цитирайте кода към имота: 101615
Особености
Тухла
За контакт:
0887779990
Агенция:
ЕКС НВД ПЛОВДИВ ООД
0887779990
ЕКС НВД ПЛОВДИВ ООД logo
В imot.bg от 2023 г.
xnvd_plovdiv.imot.bg
Адрес:
област Пловдив, гр. Пловдив, бул. Мария Луиза 43 А
ИЗПРАТИ ЗАПИТВАНЕ
ИЗПРАТИ ЗАПИТВАНЕТО

Продава 2-СТАЕН
град Пловдив, Остромила
Обява: 1b177505020585851

145 834 €
285 226.51 лв.
История на цената
(2 145 €, 4 195.26 лв./m2)

Не се начислява ДДС
ЗАПАЗИ ОБЯВАТА

Местоположение: град Пловдив, Остромила

Допълнителни данни за имотите в района и сравнение с други райони

Покажи

Период

и 3 месеца

* Средните цени са определени чрез медианна стойност